108 Warren St
Arlington, MA 02474


  • $995,000
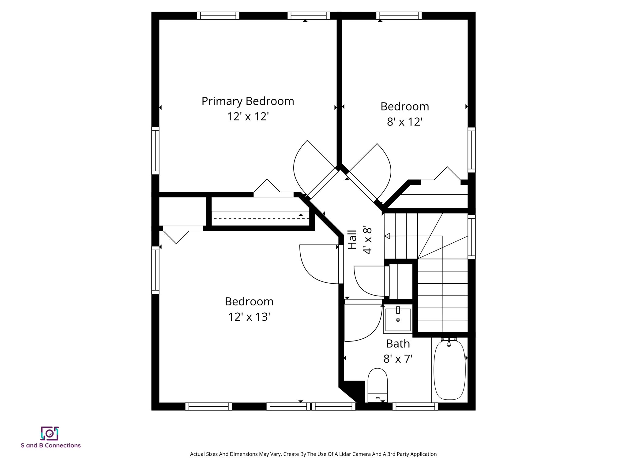
  • 3 Bedrooms
  • 2 Bathrooms
  • 1,520 Sq/ft
  • Lot 0.07 Acres
  • 3 Parking Spots
  • Built in 1900
  • MLS: 73444302

Details

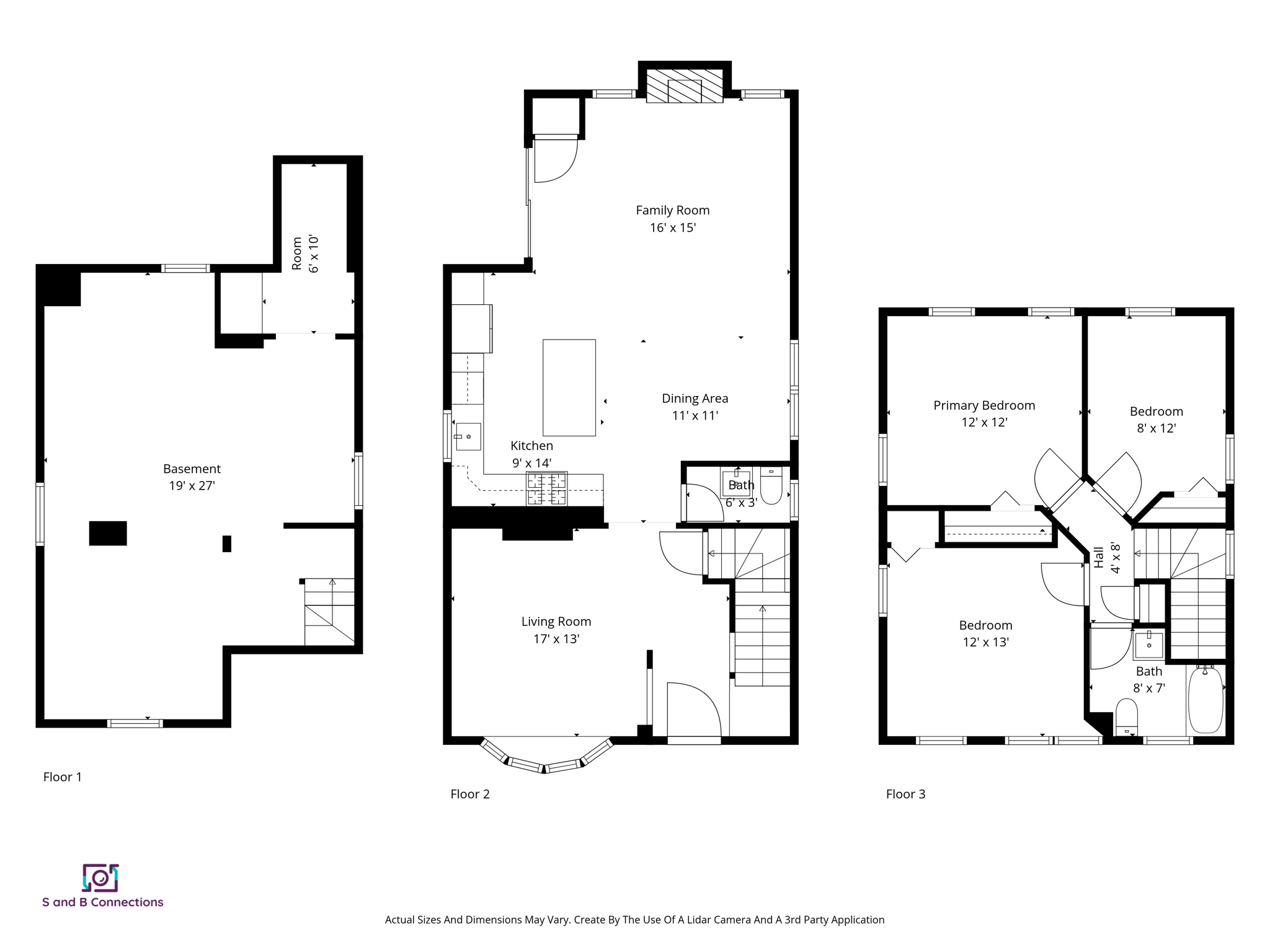
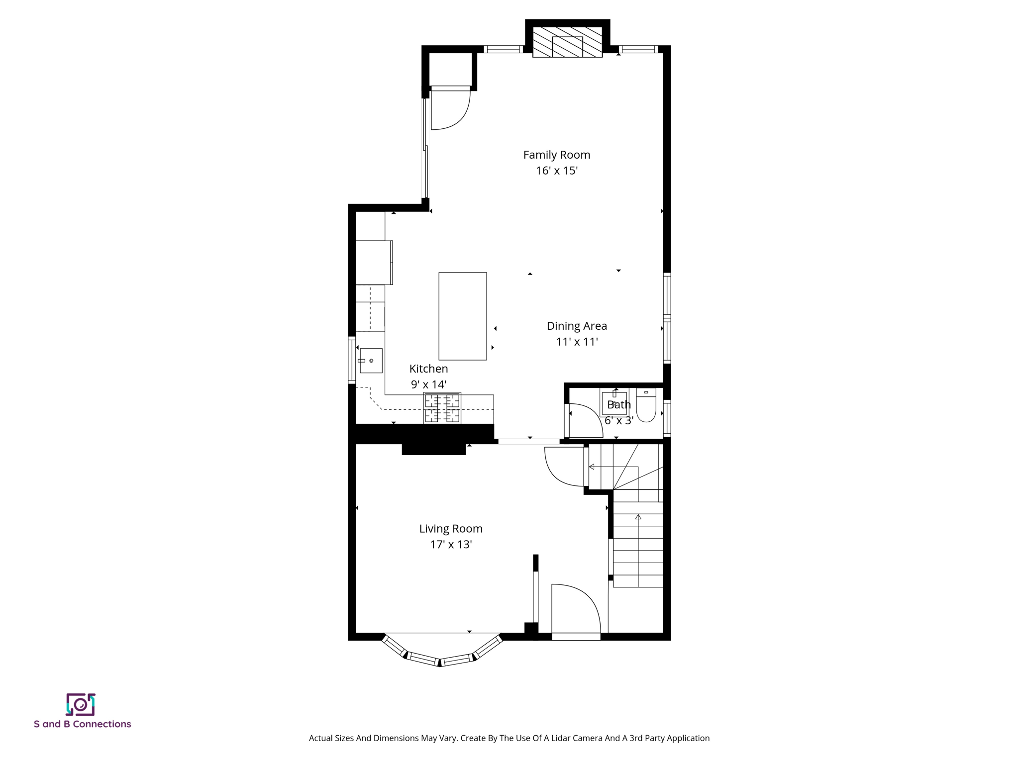
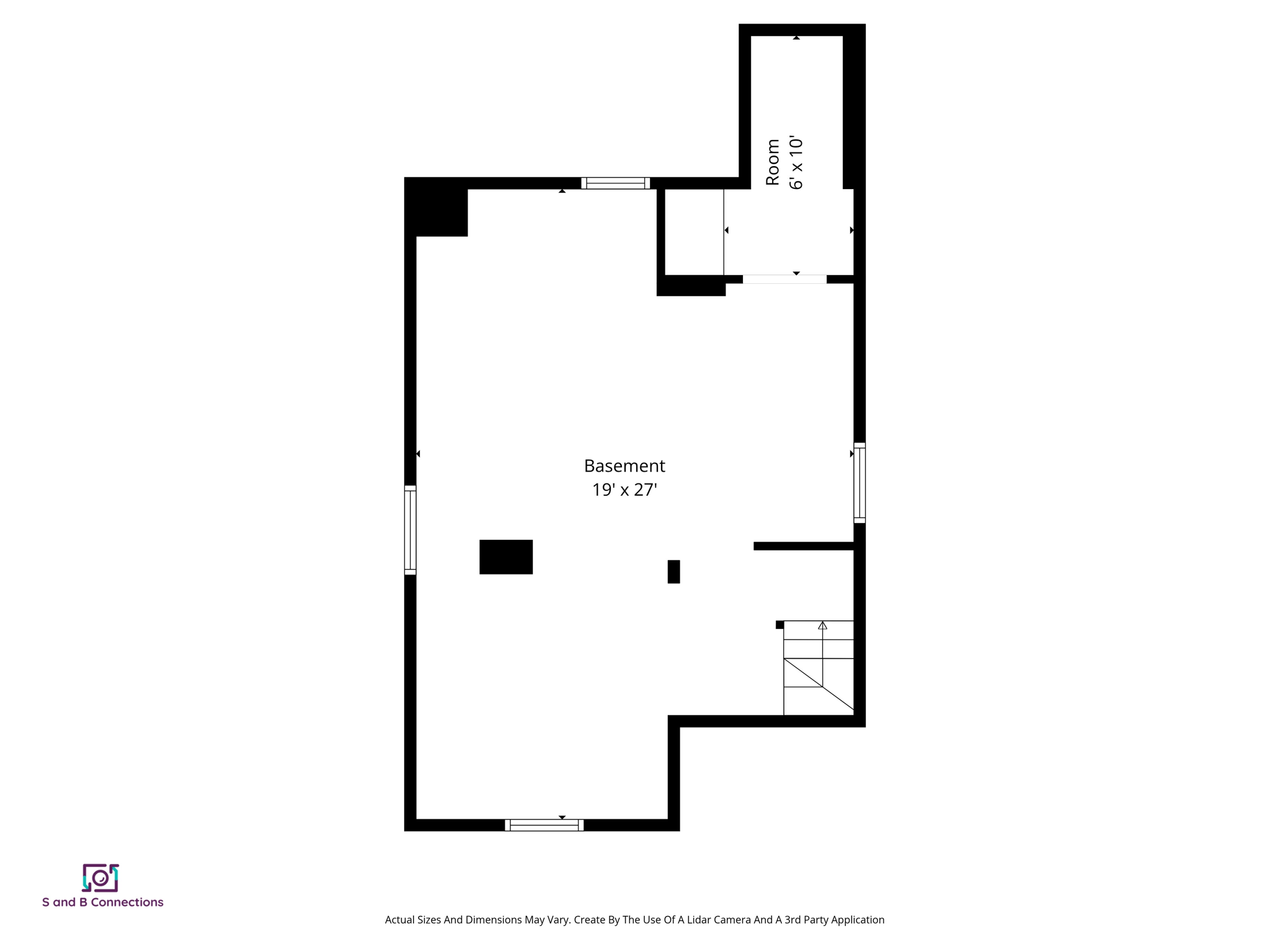
Rare opportunity to own a single-family home in Arlington Center, cherished by one family for over 50 years. This beautifully renovated Colonial features open-concept living with spacious living and family rooms, gleaming hardwood floors, and a cozy gas fireplace. The modern kitchen boasts a center island, stainless steel appliances, and a bright dining area—perfect for gatherings and entertaining. Enjoy energy-efficient gas heating, off-street parking, a new composite deck, and a charming yard ideal for relaxing or play. The unfinished basement offers excellent storage and potential for future expansion. Just steps from Arlington’s vibrant shops, restaurants, schools, and public transportation, this move-in-ready home seamlessly blends classic charm with modern comfort in one of the area’s most desirable neighborhoods.

Images

Floor Plans