100) ? false : true; navIsShown = (window.pageYOffset > heroHeight) ? true : false; triggerTransitions = window.pageYOffset > (heroHeight / 2) ? true : false; if (navIsOpen && !atTop && !navIsShown) navIsOpen = false; ">
Toggle Navigation
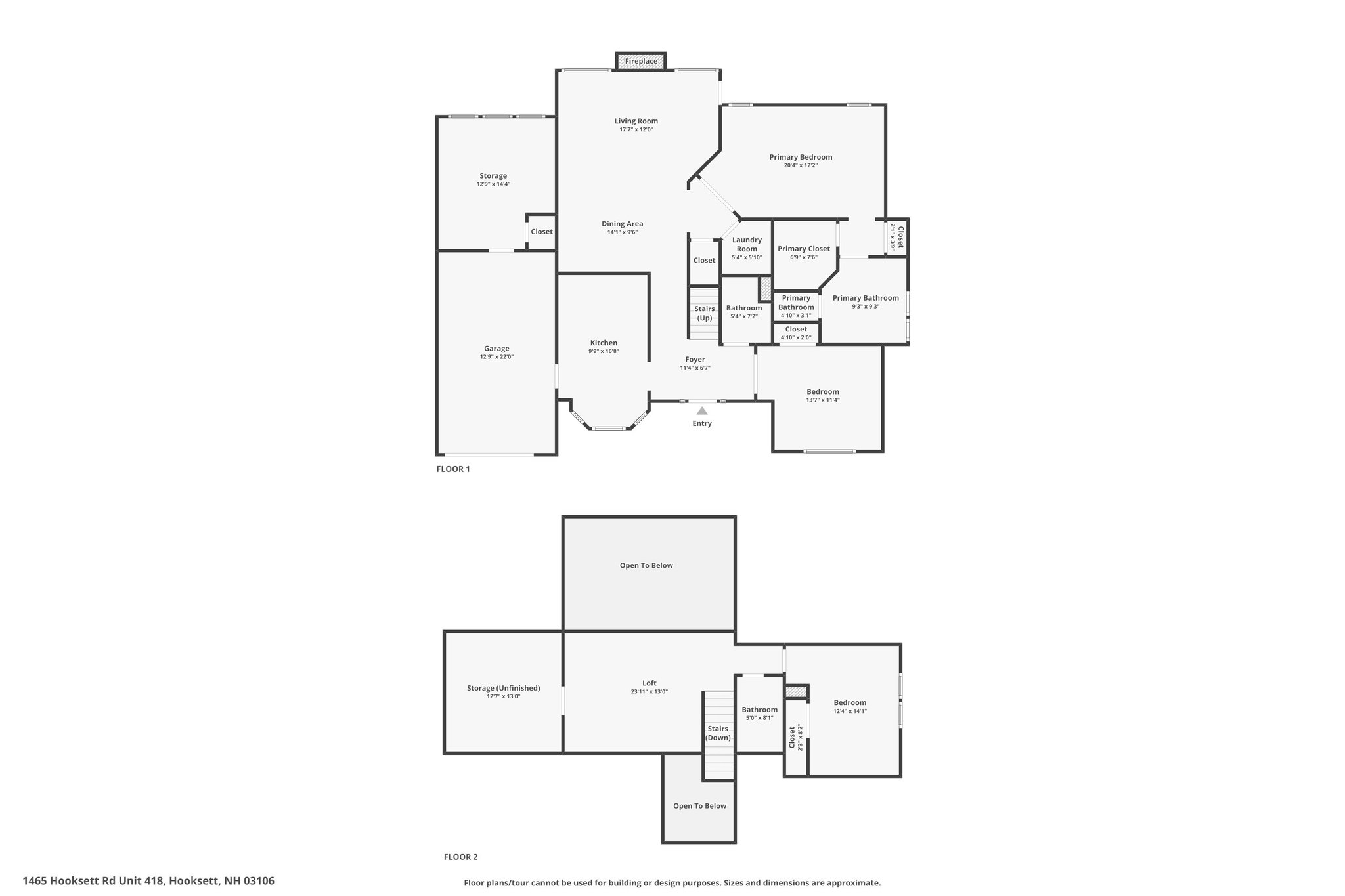
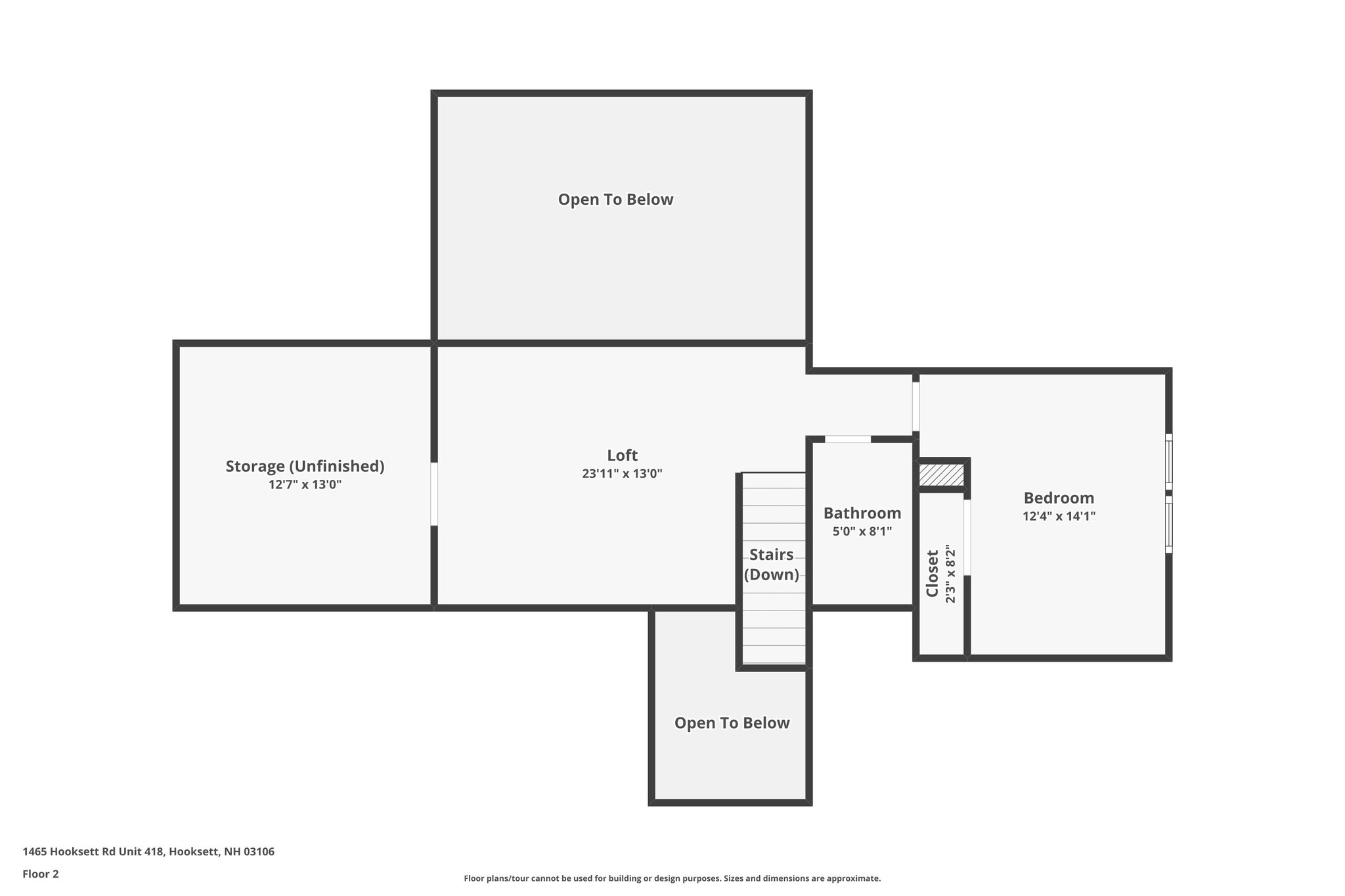
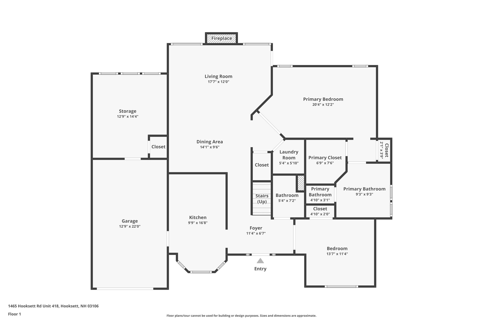
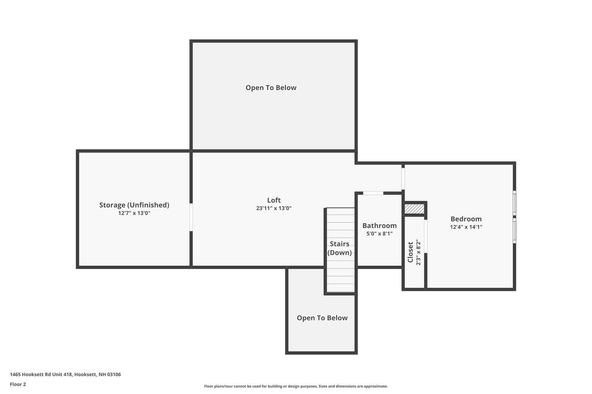
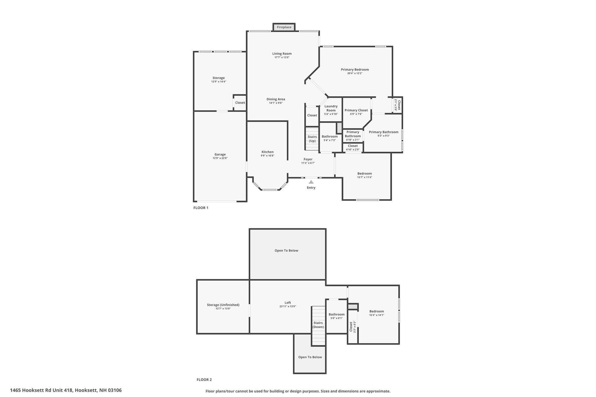
1465 Hooksett Rd Unit 418, Hooksett, NH 03106
Images
Floor Plans
3D Tour
Map
View Gallery
3D Tour
Slideshow
Photo Grid
Hide
Previous
Next
1465 Hooksett Rd Unit 418
Hooksett, NH 03106
Images
Show more
Slideshow
Photo Grid
Hide
Previous
Next
Floor Plans
Slideshow
Photo Grid
Hide
Previous
Next
3D Tour