100) ? false : true; navIsShown = (window.pageYOffset > heroHeight) ? true : false; triggerTransitions = window.pageYOffset > (heroHeight / 2) ? true : false; if (navIsOpen && !atTop && !navIsShown) navIsOpen = false; ">
Toggle Navigation
24 Sheffield Wy, Londonderry, NH 03053
Images
Videos
Floor Plans
Map
View Gallery
Slideshow
Photo Grid
Hide
Previous
Next
24 Sheffield Wy
Londonderry, NH 03053
Images
Show more
Slideshow
Photo Grid
Hide
Previous
Next
Videos
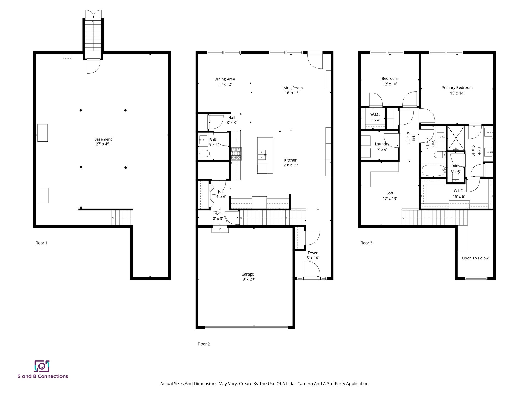
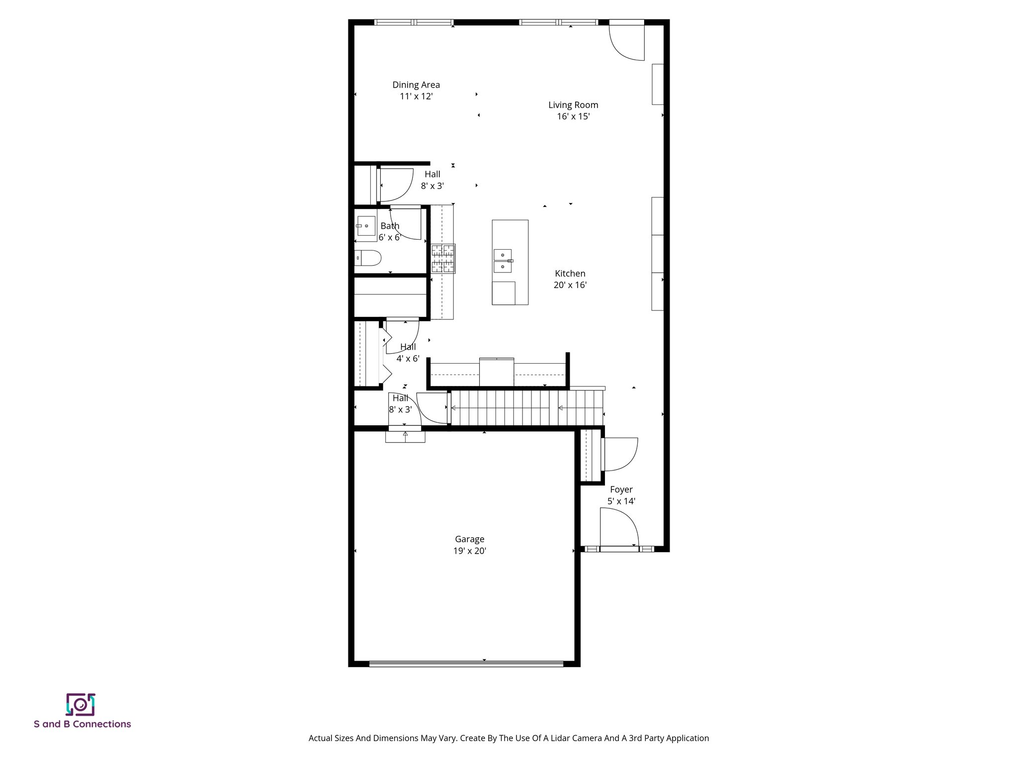
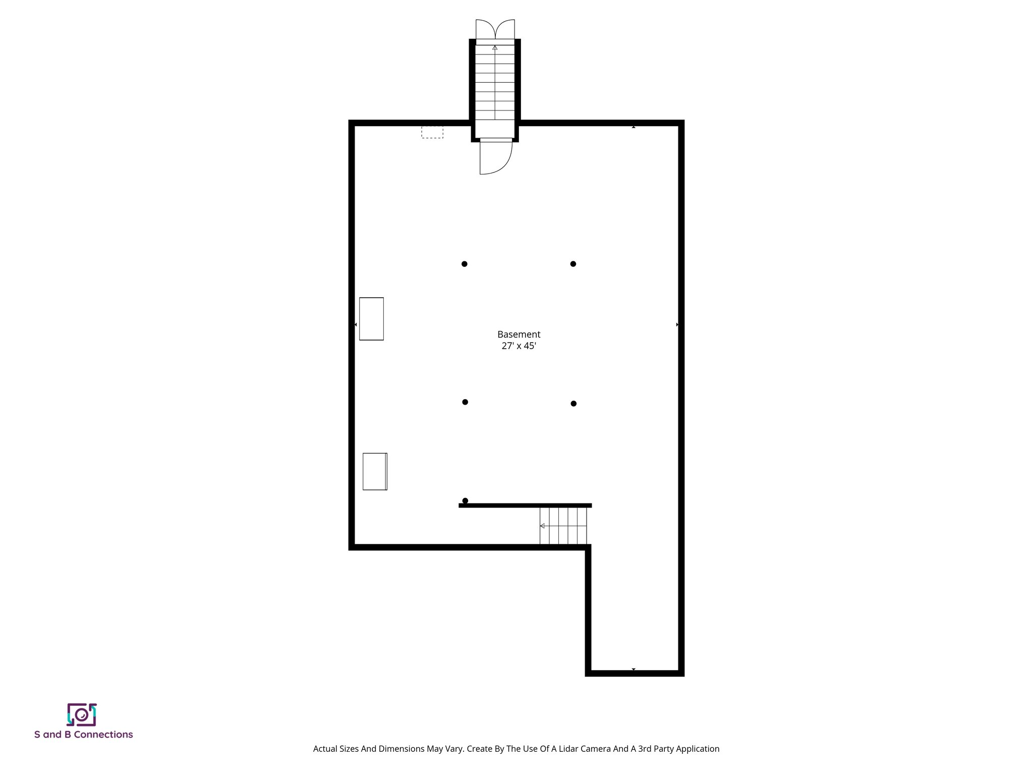
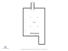
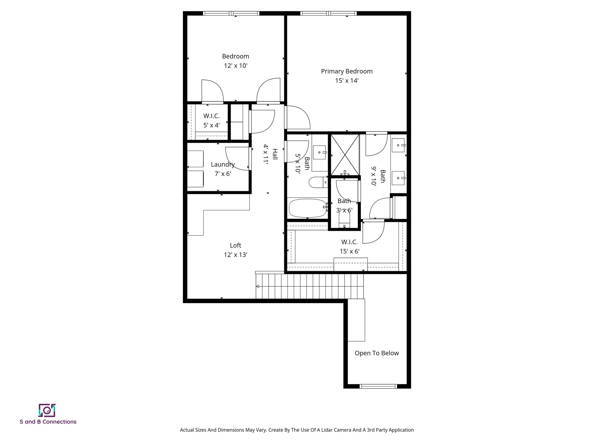
Floor Plans
Slideshow
Photo Grid
Hide
Previous
Next